Hytte Blåtind

Blåtind er en kompakt hytte på ett plan, med et kraftig og moderne uttrykk. Tretaket og takutstikkene er med på å gi fasaden rene linjer og røffe detaljer. Både taket og kledningen har mørke fargenyanser, noe som gir hytta en naturlig helhet. Blåtind-hytta har en gjennomtenkt og funksjonell design som kombinerer praktiske aspekter med en god estetikk. Det gir beboerne muligheten til å nyte både komforten inne og naturen utenfor.

  • BRA 64,6
  • P-rom
  • 2

Robust og moderne hytte

Hytta har en sentralt plassert hovedinngang langs den ene langveggen. Denne inngangen er beskyttet av et takoverbygg med tilstrekkelig dybde, som gir beskyttelse mot vær og vind. Når du går inn i hytta, åpner oppholdsrommet seg opp i gavl mot sørveggen. Dette gir en flott visuell effekt, da man umiddelbart blir møtt med en fantastisk utsikt over landskapet. Kortsiden av oppholdsrommet har et rikt vindusparti som strekker seg fra gulv til tak. Dette gir en følelse av å være tett på naturen selv når man er innendørs, og du får en åpen og lys atmosfære.

Bestill hyttekatalog

Ideel planløsning

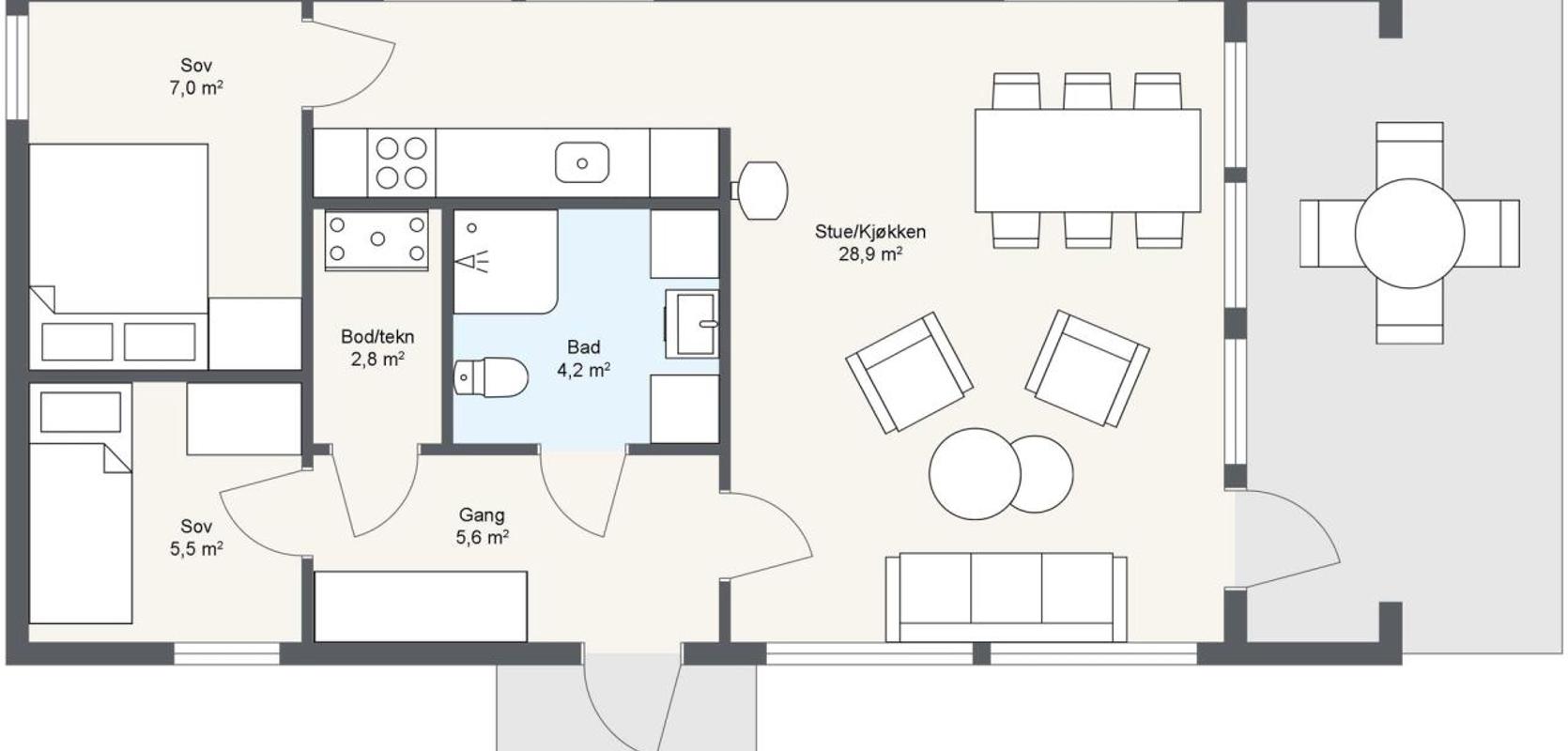
Blåtind har en praktisk planløsning. I entreen har du god plass til ytterklær, og herfra har man inngang til badet. Plassert ved siden av badet er en bod for teknisk utstyr. Når kjøkken, bad og teknisk rom danner en kjerne midt i hytta gir dette en samlet, praktisk og økonomisk løsning for de tekniske installasjonene.

Begge soverommene vender mot nord hvor hovedsoverommet har adkomst fra kjøkkensone. Det minste soverommet kan innredes med køyesenger og har inngang fra yttergangen.

Spiseplass ligger i nær tilknytning til kjøkkenet og gavlveggen med store, høye vinduer og utgang til uteplassen i sør. Ildstedet er sentralt plassert i hoveddelen og kan nytes fra hele oppholdsrommet.

Hytte for fjell, skog eller sjø

Hytta behøver en flate på ca 16m lengde og 10m bredde i landskapet. Hytta er prosjektert med hensyn på plassering i fjellets landskap, skogkledd landskap eller i en lomme mellom svabergene ved sjø.

* Alle bilder og illustrasjoner er til inspirasjon og kan avvike fra endelige tegninger.

Ta kontakt med forhandlet
}